Координацияланган жол кыймылынын жөнгө салуучусу
Кененирээк окуу
Продукцияны тааныштыруу:
Жөө жүргүнчүлөр өтмөгүндөгү жол кыймылын жөнгө салуучу - бул бир тараптуу көчөдөгү жөө жүргүнчүлөр өтмөгү колдонмолору үчүн иштелип чыккан атайын жол чырактарын башкаруу системасы. Ал эки конфигурацияда жеткиликтүү: 5 каналдуу модель жана 12 каналдуу модель. 5 каналдуу модель бир баскычтуу жөө жүргүнчүлөр өтмөгүн колдойт жана негизги өтүү сценарийлери үчүн идеалдуу. 12 каналдуу модель эки баскычтуу жөө жүргүнчүлөр өтмөгүн иштетүүгө мүмкүндүк берүүчү жана тармактык иштөө, убакытка негизделген график, сары сигналдардын жаркылдашы жана жөө жүргүнчүлөр тарабынан демилгеленген өтмөк сыяктуу бир нече башкаруу режимдерин колдогон жакшыртылган функцияны камсыз кылат.
| Продукциянын модели | XHJ-AW-GA-FM1002 | XHJ-BW-GA-FM100B |
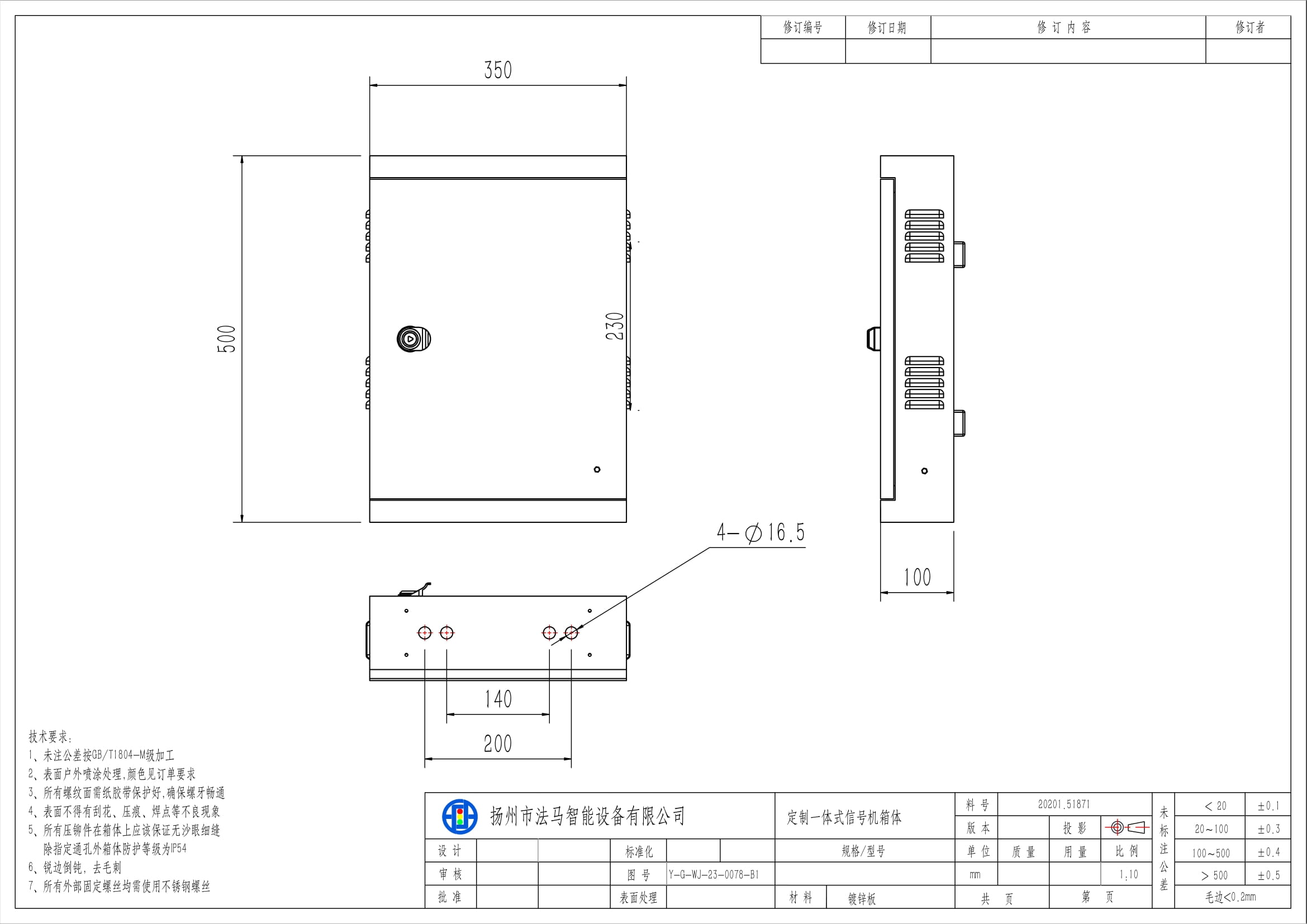
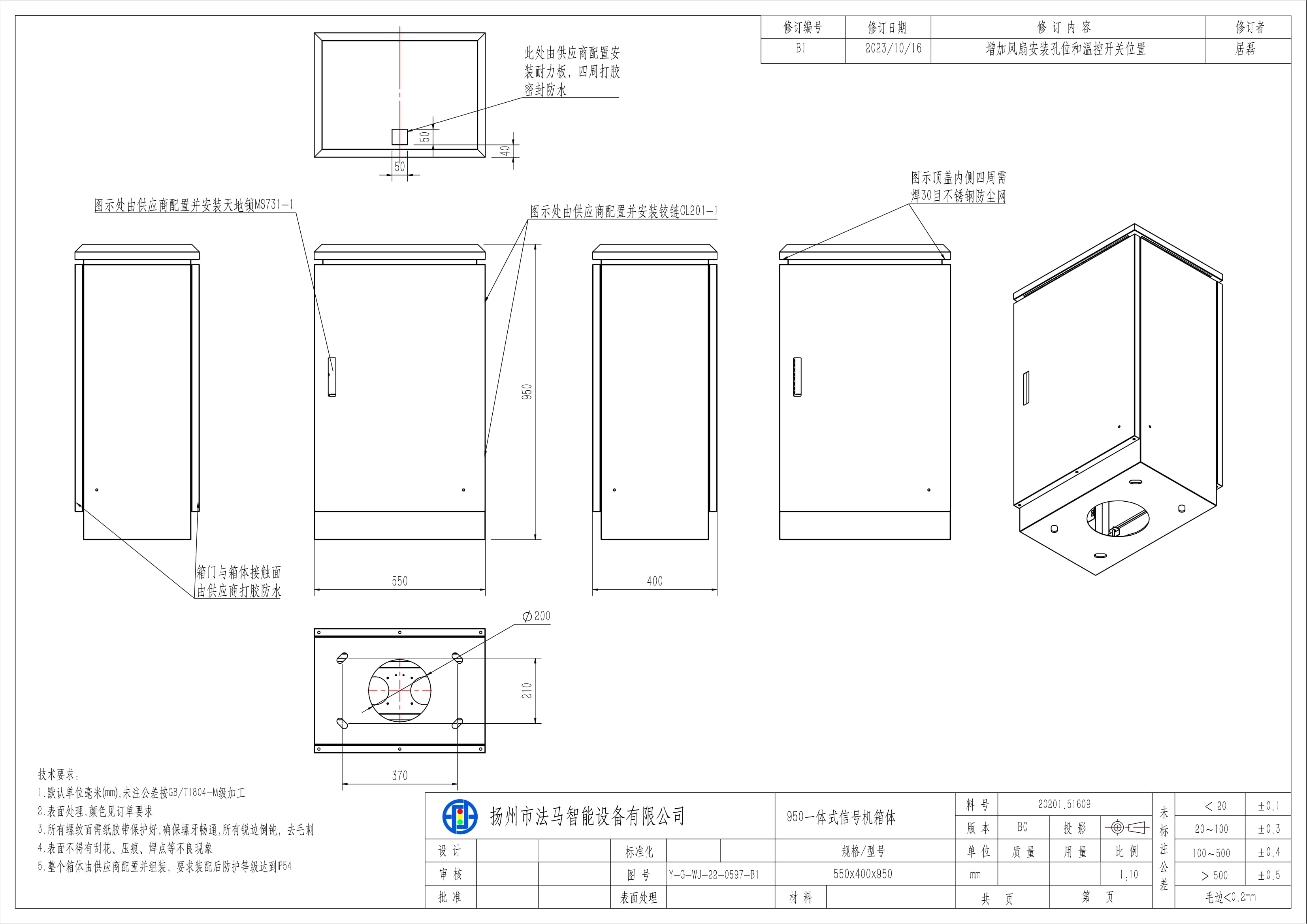
| Корпустун өлчөмдөрү | Узундугу × Т × Бийиктиги: 35 × 10 × 50 мм | Узундугу × Т × Бийиктиги: 55 × 40 × 95 мм |
| Иштөө чыңалуу / жыштык | AC: 85-264V/47-63Hz | AC: 85-264V/47-63Hz |
| Сигнал чыгаруу | 5-чыгарылыш | 12-чыгарылыш |
| Байланыш интерфейси | RS485*1 | RJ45*1, RS232*1, RS485*1,4G/5G |
| Сигнал фазаларынын саны | 2 фаза | 4 фаза |
| Машинанын күтүү режиминдеги кубат керектөөсү | 15 Вт | 15 Вт |
| Ар бир канал үчүн кыймылдаткыч тогу | 3А | 3А |
| Ар бир каналдагы импульстук токтун күчөшү | 160А | 160А |
| Жылуулоо каршылыгы | ≥20MΩ | ≥20MΩ |
| Иштөө температурасы | -40℃ дан +80℃ га чейин | -40℃ дан +80℃ га чейин |
| Салыштырмалуу нымдуулук | ≤95% RH | ≤95% RH |
| Коргоо даражасы | IP55 | IP55 |
| Таңгактоо мүнөздөмөлөрү | Өлчөмдөрү (узундугу × туурасы × бийиктиги): 57 × 40 × 17,5 см, салмагы: 14,65 ± 0,5 кг | Өлчөмдөрү (узундугу × туурасы × бийиктиги): 65 × 17 × 48 см, салмагы: 13,75 кг ± 0,5 кг |

